• Home
  • Projects
  • News + Links
  • About
  • Contact

Sunset Ave., Venice

  • Images
  • About the Project
  • Project Documents

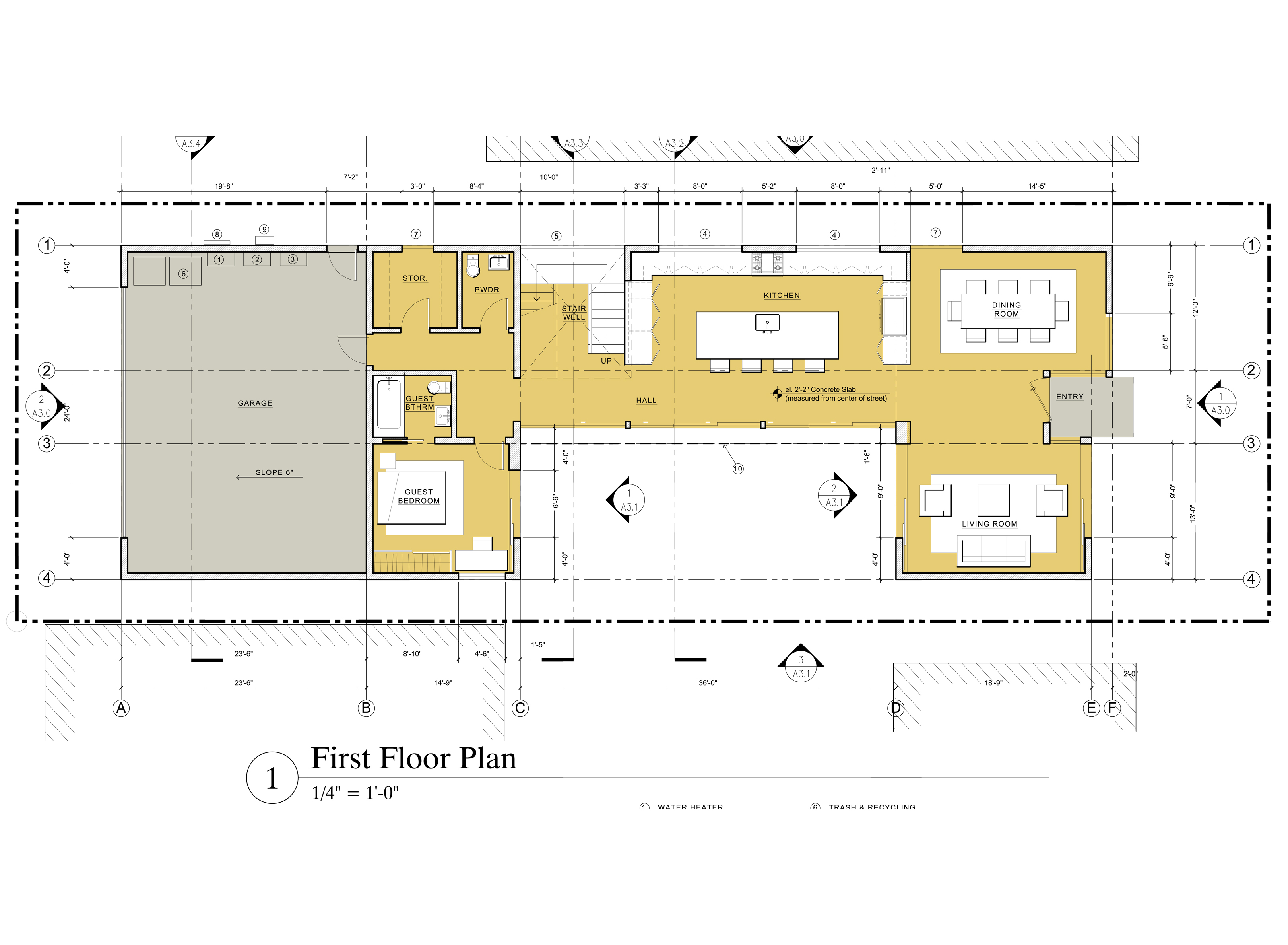
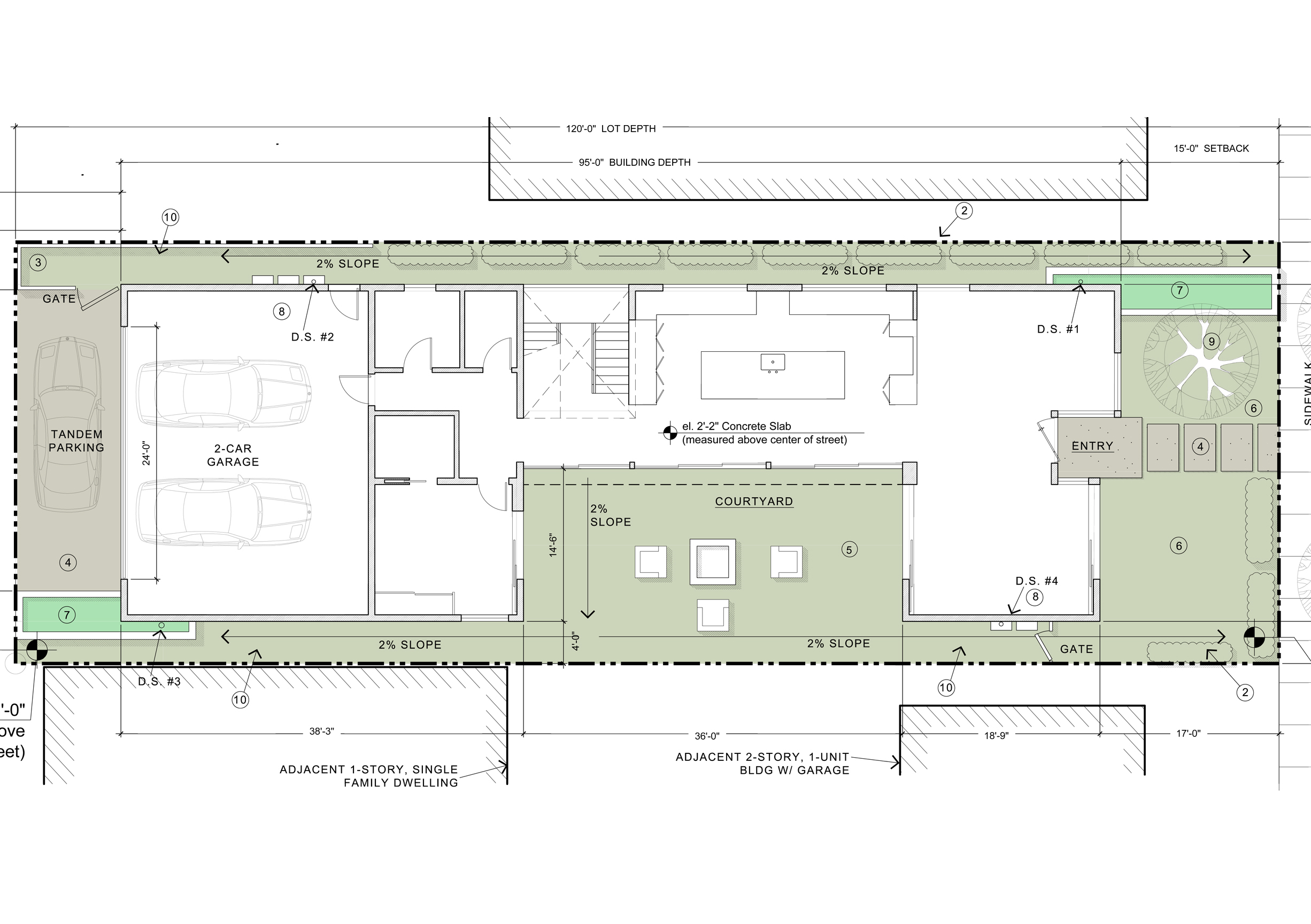
Single Family modern home in Venice. 3,650 square foot interior area.

  • Design: 2015
  • Ground Breaking: 2017
  • Completion: - - -
  • Location: Venice, CA
  • Design, Detailing, Permitting: David Crimmins, Crimmins-Design
  • Interior Design: Sarai Grennell, SB2
  • Structural Engineeer: Neman Niaki
  • Landscape: - - -
  • General Contractor: - - -








  • enter password... ...then CLICK HERE